Building house

xianmacx

AzB Silver Member
Silver Member
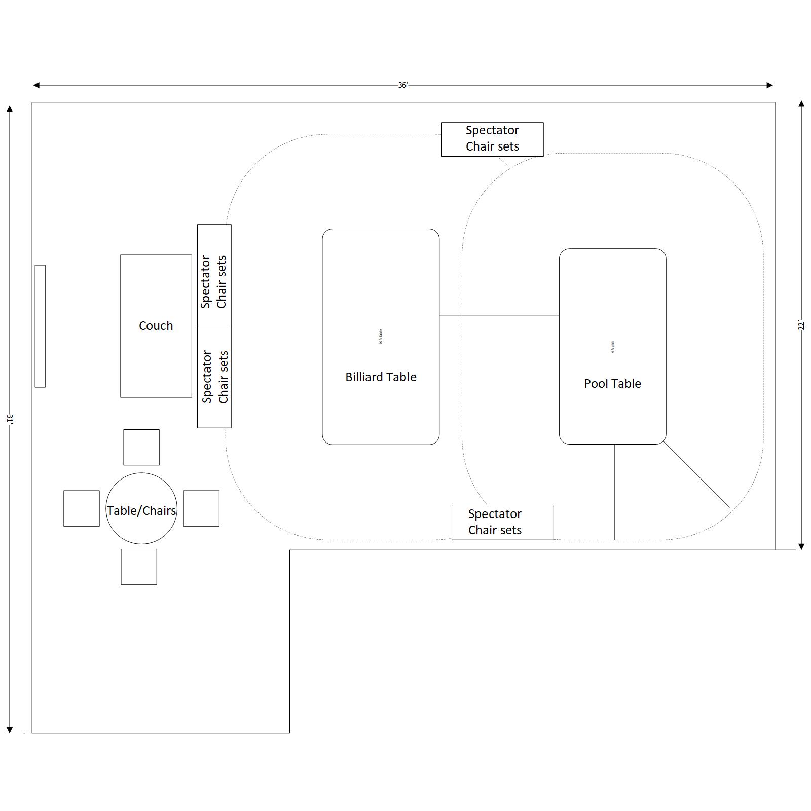
They will be breaking ground in the next 3 weeks on my new house. I have a 9ft GC in my current basement and a 10ft GC billiard table in storage. I wanted to have a room in the new house where I could have them both with no poles. After some work with an engineer and increasing I beam / joist sizes, I will have enough room for both tables as well as seating / couches / tables and a kitchen area. The attached image is the section of basement dedicated to pool room. Just playing with layouts at this point. No obstructions and 10ft ceiling. Hope to be finished with house around thanksgiving. :thumbup:

As I understand it, 10ft is tall enough to swing a driver, so I might have to get a simulator on the other side of basement.
 

Attachments

  • basementdrawing5.jpg
    basementdrawing5.jpg
    100.2 KB · Views: 1,325
Last edited:
Awesome.

And not that you asked or needed, more for those contemplating dual+ home table setups...

Tables can be closer to each other that they can be to a wall.

Put a bar box in too?!
 
They will be breaking ground in the next 3 weeks on my new house. I have a 9ft GC in my current basement and a 10ft GC billiard table in storage. I wanted to have a room in the new house where I could have them both with no poles. After some work with an engineer and increasing I beam / joist sizes, I will have enough room for both tables as well as seating / couches / tables and a kitchen area. The attached image is the section of basement dedicated to pool room. Just playing with layouts at this point. No obstructions and 10ft ceiling. Hope to be finished with house around thanksgiving. :thumbup:

As I understand it, 10ft is tall enough to swing a driver, so I might have to get a simulator on the other side of basement.
----------------------------------------------------------------------------

One of the best things you can do is insulate every spot possible, forget code, you want better.

I have built a few homes, every single one of them is insulated far beyond code. Some builders thought it was a waste of money, I proved them wrong. Tap on any wall and it sounds solid instead of hollow.

Between floors? Yes sir, not required but it sure is nice.

Every single interior wall? Yes sir, the added silence is golden.

Talk to the insulation subcontractor if you can, the additional cost will surprise you, it's not that much.

Good luck, it should turn out fantastic.
 
Great plan for a room. One room in my basement has 1000 sq ft (43' x 23') with 10' ceilings and no poles. I don't think you can overstate how great it is having that much room. There are never any arguments when my wife wants to watch cooking shows or talent competitions in the family room.

You are going to have a tough time waiting until Thanksgiving.
 
----------------------------------------------------------------------------

One of the best things you can do is insulate every spot possible, forget code, you want better.

I have built a few homes, every single one of them is insulated far beyond code. Some builders thought it was a waste of money, I proved them wrong. Tap on any wall and it sounds solid instead of hollow.

Between floors? Yes sir, not required but it sure is nice.

Every single interior wall? Yes sir, the added silence is golden.

Talk to the insulation subcontractor if you can, the additional cost will surprise you, it's not that much.

Good luck, it should turn out fantastic.

Great advice here! I'm jealous when I read this thread. I live out West where there are no basements in houses. I had to appropriate my living room (16x20) and make a poolroom out of it. The wife came later! :thumbup:
 
Thanks for the feedback guys.

I never thought about the additional insulation. I think I will discuss with my builder on our next meeting.

When you say move the tables closer, what is a comfortable distance apart? I guess I could go to the pool hall and measure?

I also thought about going end to end?

Yes it going to be an anxious summer!

Ian
 
I know you were talking about a golf simulator but that 9x12 area (estimating) below the table and chairs looks like it would be big enough for a small half bath and if you plum that, you can add a wet bar beside it.


Anyway....it looks great
 
Yes I was thinking about the bar / kitchen in the nook as you described.

There will be a full bath on the other side of basement.
 
Where are you putting the snooker table?
And what's the address?
Great room. Enjoy!
 
Looks like a solid plan and a great room. I know most of us are just salivating over an invite to check out the finished product. Good luck with the home build. I hope it comes in to plan, on time, and under budget.
 
----------------------------------------------------------------------------

One of the best things you can do is insulate every spot possible, forget code, you want better.

I have built a few homes, every single one of them is insulated far beyond code. Some builders thought it was a waste of money, I proved them wrong. Tap on any wall and it sounds solid instead of hollow.

Between floors? Yes sir, not required but it sure is nice.

Every single interior wall? Yes sir, the added silence is golden.

Talk to the insulation subcontractor if you can, the additional cost will surprise you, it's not that much.

Good luck, it should turn out fantastic.

You can also utilize sound proofing underlayment's and Quiet Rock. We do that on a lot of the houses we build. Most also use Icynene / Spray foam insulation. Insulation works better if its not crammed into the cavity and made more dense.
 
Great advice here! I'm jealous when I read this thread. I live out West where there are no basements in houses. I had to appropriate my living room (16x20) and make a poolroom out of it. The wife came later! :thumbup:

Almost true Jay... 75% of the houses I have built have basements. Two homes ago the basement was over 10K feet !!! It was a 40K SF house ...but still. My good friend just bought a house near me in Monrovia that was built in 1911 and it has a basement :)

Looking forward to meeting your wife and kicking you ass (or maybe the reverse?) in some 1P some day soon !!
 
I know you were talking about a golf simulator but that 9x12 area (estimating) below the table and chairs looks like it would be big enough for a small half bath and if you plum that, you can add a wet bar beside it.


Anyway....it looks great

Lots of good info here... I second this one as well!!!
 
You can also utilize sound proofing underlayment's and Quiet Rock. We do that on a lot of the houses we build. Most also use Icynene / Spray foam insulation. Insulation works better if its not crammed into the cavity and made more dense.



Since you are building, anything you can do to provide sound insulation (including a good door at the top of the stairs) will be money well spent! It’s amazing how the sound of pool balls travels.
 
Is the basement fully underground? Or partly? The ones I’ve been in that were fully always seemed to have a musky smell and higher humidity. In either case for yours, will you have a climate control system in the basement that may address environmental issues that might not happen above ground?
 
Back
Top